Prawidłowe zbrojenie stropu Teriva to jeden z najważniejszych etapów budowy, decydujący o bezpieczeństwie i trwałości całej konstrukcji. Jako doświadczony praktyk, wiem, że każdy detal ma tu znaczenie. Ten artykuł dostarczy Ci kompleksowej wiedzy, od podstawowych elementów po szczegółowe instrukcje i najczęstsze błędy, abyś mógł wykonać zbrojenie zgodnie ze sztuką budowlaną i obowiązującymi normami.
Prawidłowe zbrojenie stropu Teriva to fundament bezpieczeństwa i trwałości konstrukcji.
- Wieńce żelbetowe, żebra rozdzielcze, zbrojenie przypodporowe i siatka na nadbeton to kluczowe elementy każdego stropu Teriva.
- Żebra rozdzielcze są niezbędne przy rozpiętościach powyżej 4 m, a zbrojenie przypodporowe jest obowiązkowe i musi spełniać normę 40 kN/m.
- Pod ścianki działowe równoległe do belek należy wykonać wzmocnione żebro, często poprzez ułożenie dwóch belek Teriva obok siebie.
- Należy stosować stal zbrojeniową o odpowiedniej średnicy (np. min. ø10-12 mm w wieńcach) i klasie, beton C20/25 (B25) oraz zapewnić właściwą otulinę stali.
- Do najczęstszych błędów należą: brak żeber rozdzielczych, niewłaściwe zbrojenie przypodporowe, złe zakotwienie prętów i zbyt mała otulina betonu.

Zbrojenie stropu Teriva fundament bezpiecznej konstrukcji, o którym musisz wiedzieć wszystko
Dlaczego prawidłowe zbrojenie jest ważniejsze niż myślisz?
Zbrojenie stropu Teriva to nie tylko zestaw prętów i siatek; to krytyczny element konstrukcyjny, który decyduje o nośności, sztywności i stabilności całego budynku. W mojej praktyce widziałem, jak często inwestorzy i wykonawcy niedoceniają tego etapu, skupiając się na szybkości, a nie na precyzji. Tymczasem, to właśnie prawidłowo wykonane zbrojenie pozwala stropowi przenosić obciążenia, zarówno te stałe (ciężar własny konstrukcji), jak i zmienne (użytkowanie, śnieg).
Błędy w zbrojeniu mogą prowadzić do szeregu poważnych konsekwencji, które objawiają się nie od razu, ale z czasem. Mogą to być nieestetyczne pęknięcia na suficie, uciążliwe ugięcia stropu, a w skrajnych przypadkach co jest najgorszym scenariuszem nawet do katastrofy budowlanej. Dlatego zawsze podkreślam, że precyzyjne wykonanie zbrojenia zgodnie z projektem i obowiązującymi normami budowlanymi jest jedyną gwarancją bezpieczeństwa i długowieczności stropu. To inwestycja w spokój na lata.
Zrozumieć system Teriva: rola belek, pustaków i betonu w monolitycznej całości
System stropowy Teriva to klasyczne rozwiązanie gęstożebrowe, które łączy w sobie elementy prefabrykowane z betonem wylewanym na budowie. Składa się z lekkich belek stropowych, które pełnią funkcję zbrojenia dolnego i szalunku traconego, oraz pustaków (ceramicznych lub betonowych), które wypełniają przestrzeń między belkami. Całość jest następnie zalewana warstwą nadbetonu.
Kluczem do sukcesu tego systemu jest współpraca wszystkich tych elementów. Belki, pustaki i nadbeton muszą działać jak jedna, monolityczna płyta. I tu właśnie wkracza zbrojenie! To ono jest tym spoiwem, które scala te komponenty, umożliwiając im efektywne przenoszenie obciążeń i zapewniając odpowiednią sztywność konstrukcji. Bez właściwego zbrojenia, zwłaszcza w newralgicznych punktach, strop Teriva nie spełniłby swojej funkcji.
Elementy zbrojenia, których nie możesz pominąć szczegółowy przegląd
Wieniec żelbetowy: kręgosłup spinający strop ze ścianami
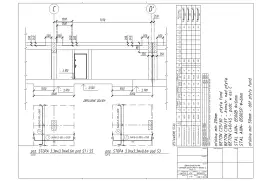
Wieńce żelbetowe to absolutna podstawa każdego stropu Teriva, a ja nazywam je "kręgosłupem" konstrukcji. Ich głównym zadaniem jest spinanie stropu ze ścianami nośnymi, zapewniając jego stabilność, sztywność i równomierne rozkładanie obciążeń na całą konstrukcję. Wykonuje się je na wszystkich ścianach nośnych, zarówno tych poprzecznych, jak i równoległych do belek. Wysokość wieńca powinna być co najmniej taka, jak wysokość stropu. Typowe zbrojenie wieńca to cztery pręty o średnicy minimum 10 mm, choć wielu producentów i projektantów zaleca stosowanie prętów o średnicy 12 mm dla większej pewności. Pręty te są połączone strzemionami (najczęściej o średnicy ø4,5 mm lub ø6 mm) rozmieszczonymi co około 25 cm. Ważne jest, aby górne pręty wieńca były umieszczone około 30 mm poniżej górnej powierzchni stropu. Dzięki temu możliwe jest prawidłowe ułożenie i otulenie zbrojenia przypodporowego. Wieńce betonuje się zawsze razem ze stropem, co zapewnia monolityczność połączenia.
Żebra rozdzielcze: strażnicy sztywności stropu i wróg "klawiszowania"
Żebra rozdzielcze to elementy, których rola jest często niedoceniana, a ich brak lub niewłaściwe wykonanie może prowadzić do nieprzyjemnego zjawiska "klawiszowania" czyli nierównomiernego uginania się belek stropowych, co objawia się pęknięciami na suficie. Ich główną funkcją jest usztywnienie stropu i zapewnienie mu jednolitej pracy. Kiedy i jak je stosować? Oto zasady, którymi kieruję się w pracy:
- Do rozpiętości około 4,0 m: zazwyczaj nie są konieczne, choć niektórzy producenci podają progi 3,0 m lub 3,4 m. Zawsze warto sprawdzić wytyczne producenta belek.
- Przy rozpiętości od około 4,0 m do 6,0 m: należy wykonać jedno żebro rozdzielcze, umieszczone w środku rozpiętości stropu.
- Powyżej 6,0 m rozpiętości: konieczne jest wykonanie co najmniej dwóch żeber, które rozmieszcza się w około 1/3 rozpiętości stropu.
Żebra te mają zazwyczaj szerokość od 7 do 12 cm i zbroi się je dwoma prętami (góra i dół) o średnicy minimum ø12 mm, połączonymi strzemionami ø4,5 mm rozmieszczonymi co około 60 cm. Niezwykle istotne jest zakotwienie zbrojenia żebra w prostopadłych wieńcach na długość minimum 0,5 m, aby zapewnić ciągłość konstrukcji i efektywne przenoszenie sił.
Zbrojenie przypodporowe (siatki P i Z): sekret wytrzymałości w najważniejszych miejscach
Zbrojenie przypodporowe to element obowiązkowy, który wzmacnia najbardziej obciążone strefy stropu miejsca oparcia belek na podporach, czyli wieńcach. To właśnie tam występują największe naprężenia ścinające, dlatego odpowiednie wzmocnienie jest kluczowe dla bezpieczeństwa. Norma wymaga, aby zbrojenie przypodporowe było zdolne do przeniesienia siły 40 kN/m. W zależności od rozpiętości stropu i rodzaju podpory, stosuje się różne typy siatek:
- Siatki płaskie (P-1, P-2): Przeznaczone są dla stropów o rozpiętościach do 6,0 m. Siatkę P-1 układa się symetrycznie na podporach wewnętrznych, natomiast siatkę P-2 stosuje się na podporach skrajnych.
- Siatki zaginane (Z-1, Z-2): Są to siatki, które stosuje się przy rozpiętościach powyżej 6,0 m. Montuje się je w każdym żebrze stropowym, zapewniając dodatkowe wzmocnienie w krytycznych obszarach.
Pamiętaj, że rodzaj i układ siatek przypodporowych zawsze musi być zgodny z projektem konstrukcyjnym!
Siatka na nadbeton: niedoceniany element chroniący przed pęknięciami
Siatka na nadbeton, często nazywana siatką przeciwskurczową, to element, który choć nie wpływa bezpośrednio na nośność stropu, jest niezwykle ważny dla jego trwałości i estetyki. Jej głównym celem jest ograniczenie skurczu betonu, który zachodzi podczas jego wiązania i twardnienia, a tym samym zapobieganie powstawaniu rys i pęknięć na powierzchni stropu. Typowo stosuje się siatki zgrzewane z prętów o średnicy ø4,5 mm i oczkach 250x250 mm. Choć w starszych instrukcjach często pomijano jej znaczenie, współczesne zalecenia i moja praktyka jasno wskazują na konieczność jej stosowania na całej powierzchni stropu. Ważne jest również, aby siatka była zakotwiona w wieńcach, co zwiększa jej efektywność. Dzięki temu strop zachowuje gładką powierzchnię i jest mniej podatny na uszkodzenia.
Jak zbroić strop Teriva? Praktyczna instrukcja krok po kroku
Krok 1: Prawidłowe przygotowanie i montaż zbrojenia wieńca
Zaczynamy od serca konstrukcji, czyli wieńców. Pierwszym krokiem jest prawidłowe przygotowanie deskowania, które musi być stabilne i szczelne, aby beton nie wypłynął. Następnie układam pręty główne wieńca zazwyczaj cztery sztuki o średnicy ø10-12 mm. Dwa pręty umieszczam na dole, a dwa na górze. Pręty te łączę strzemionami o średnicy ø4,5-6 mm, rozmieszczonymi co 25 cm. Niezwykle ważne jest zapewnienie prawidłowej otuliny betonu, dlatego zawsze używam specjalnych podkładek dystansowych, które utrzymują zbrojenie we właściwej pozycji. Pamiętaj, że górne pręty wieńca powinny znaleźć się około 30 mm poniżej górnej powierzchni stropu to kluczowe dla późniejszego montażu zbrojenia przypodporowego.
Krok 2: Wyznaczanie i zbrojenie żeber rozdzielczych kiedy i jak to zrobić?
Po zbrojeniu wieńców przechodzę do żeber rozdzielczych. Najpierw, zgodnie z projektem, wyznaczam miejsca ich lokalizacji. Przypominam, że przy rozpiętościach od 4 do 6 metrów potrzebne jest jedno żebro w środku, a powyżej 6 metrów co najmniej dwa, w 1/3 rozpiętości. Następnie wykonuję deskowanie dla żebra, które powinno mieć szerokość od 7 do 12 cm. Wewnątrz deskowania układam zbrojenie: dwa pręty o średnicy ø12 mm (jeden na dole, jeden na górze), połączone strzemionami ø4,5 mm co około 60 cm. Kluczowe jest prawidłowe zakotwienie zbrojenia żebra w prostopadłych wieńcach. Pręty żebra muszą być wpuszczone w zbrojenie wieńca na długość minimum 0,5 metra, aby zapewnić ciągłość i efektywne przenoszenie sił.
Krok 3: Układanie siatek przypodporowych P-1, P-2, Z-1, Z-2 zgodnie z projektem
Kolejnym etapem jest układanie siatek przypodporowych. To newralgiczny moment, ponieważ te siatki wzmacniają najbardziej obciążone strefy stropu. Ich rodzaj (P-1, P-2, Z-1, Z-2) jest zawsze ściśle określony w projekcie konstrukcyjnym i zależy od rozpiętości stropu oraz typu podpory (wewnętrzna czy skrajna). Moim zadaniem jest precyzyjne ich ułożenie bezpośrednio nad podporami, czyli wieńcami. Zapewniam, że siatki są odpowiednio rozłożone i zakotwione, aby mogły efektywnie przenosić naprężenia ścinające. To właśnie w tych miejscach strop jest najbardziej narażony na uszkodzenia, dlatego nie ma tu miejsca na improwizację.
Krok 4: Montaż górnej siatki zbrojeniowej na warstwę nadbetonu
Gdy główne zbrojenie jest już na miejscu, przechodzę do montażu górnej siatki zbrojeniowej, czyli siatki przeciwskurczowej. Układam ją na całej powierzchni stropu, dbając o to, aby była odpowiednio podparta. Do tego celu używam specjalnych podkładek dystansowych, które zapewniają, że siatka znajdzie się w środkowej części warstwy nadbetonu. To kluczowe, aby mogła skutecznie spełniać swoją funkcję ograniczać skurcz betonu i zapobiegać powstawaniu rys. Dodatkowo, siatka powinna być zakotwiona w wieńcach, co zwiększa jej efektywność i zapobiega przesuwaniu się podczas betonowania.
Krok 5: Finalne wiązanie i sprawdzanie ciągłości całego zbrojenia przed betonowaniem
Ostatni, ale absolutnie kluczowy etap przed betonowaniem to finalne wiązanie i dokładna kontrola. Wszystkie elementy zbrojenia pręty wieńców, żeber, siatki przypodporowe i siatka przeciwskurczowa muszą być solidnie związane drutem wiązałkowym. To zapobiega ich przemieszczeniu podczas wylewania betonu. Następnie przeprowadzam szczegółową inspekcję całego zbrojenia. Sprawdzam zgodność z projektem, prawidłowe rozmieszczenie prętów, otulinę betonu oraz ciągłość zbrojenia. Upewniam się, że nie ma żadnych luzów ani błędów. Na koniec, tuż przed wylaniem betonu, polewam wodą wszystkie elementy pustaki, belki i zbrojenie. To poprawia przyczepność świeżej mieszanki betonowej i zapobiega zbyt szybkiemu odciąganiu wody z betonu przez suche elementy, co mogłoby osłabić jego strukturę.
Sytuacje specjalne w zbrojeniu stropu Teriva jak rozwiązać typowe problemy?
Problem #1: Jak prawidłowo wykonać zbrojenie pod ściankę działową równoległą do belek?
To częsty dylemat na budowie. Jeśli ścianka działowa ma przebiegać równolegle do belek stropowych, musimy zadbać o odpowiednie wzmocnienie stropu w tym miejscu, aby uniknąć nadmiernego ugięcia czy pęknięć. Najczęściej stosowanym i zalecanym przeze mnie rozwiązaniem jest wykonanie wzmocnionego żebra poprzez ułożenie dwóch belek Teriva obok siebie. Dzięki temu uzyskujemy szersze i sztywniejsze podparcie dla ścianki. W przypadku cięższych ścianek działowych, które mogą generować większe obciążenia, konieczne może być wykonanie pełnej belki żelbetowej, zgodnie z indywidualnym projektem konstrukcyjnym. Zawsze należy to skonsultować z projektantem, aby mieć pewność, że rozwiązanie jest bezpieczne i zgodne z obliczeniami.
Problem #2: Zbrojenie przy dużych rozpiętościach (>6m) na co zwrócić szczególną uwagę?
Gdy mamy do czynienia ze stropami Teriva o dużych rozpiętościach, przekraczających 6 metrów, musimy zachować szczególną ostrożność i precyzję. W takich przypadkach, oprócz standardowego zbrojenia, bezwzględnie konieczne jest wykonanie co najmniej dwóch żeber rozdzielczych, rozmieszczonych w 1/3 rozpiętości stropu, tak jak już wcześniej wspomniałem. Zwracam również uwagę na stosowanie zaginanych siatek przypodporowych (Z-1, Z-2), które są bardziej efektywne w przenoszeniu naprężeń w tych wymagających warunkach. Projektant może również przewidzieć zastosowanie większych średnic prętów w wieńcach lub żebrach, aby zwiększyć sztywność i nośność konstrukcji. W takich sytuacjach kluczowe jest ścisłe przestrzeganie projektu konstrukcyjnego i, w razie jakichkolwiek wątpliwości, natychmiastowe konsultacje z inżynierem.
Problem #3: Łączenie zbrojenia stropu ze zbrojeniem schodów i balkonu
Miejsca styku stropu z innymi elementami konstrukcyjnymi, takimi jak schody czy balkony, są szczególnie ważne i wymagają zapewnienia ciągłości zbrojenia. Oznacza to, że pręty zbrojeniowe ze stropu powinny być odpowiednio zakotwione i połączone ze zbrojeniem tych elementów. Nie możemy dopuścić do sytuacji, w której zbrojenie stropu kończy się nagle, a zbrojenie schodów czy balkonu zaczyna się niezależnie. Takie połączenie zapewnia monolityczność konstrukcji, co jest fundamentalne dla prawidłowego przenoszenia obciążeń i zapobiegania pęknięciom na styku. Szczegóły tych połączeń długości zakotwienia, średnice prętów, sposób połączenia zawsze muszą być precyzyjnie określone w projekcie konstrukcyjnym i nie wolno ich ignorować.
Kluczowe parametry techniczne i materiałowe co mówi projekt i normy?
Jaka stal zbrojeniowa? Wymagane średnice i klasy prętów
Wybór odpowiedniej stali zbrojeniowej to podstawa. W budownictwie najczęściej stosuje się stal o klasie B500SP (dawniej BSt500S), która charakteryzuje się wysoką wytrzymałością. Jednak to nie tylko klasa, ale i średnica prętów ma znaczenie. Oto typowe wymagania, które spotykam w projektach:
- Wieńce: minimum ø10 mm, ale często zalecane ø12 mm.
- Żebra rozdzielcze: ø12 mm (zarówno pręty górne, jak i dolne).
- Strzemiona (w wieńcach i żebrach): ø4,5-6 mm.
- Siatka na nadbeton: zazwyczaj ø4,5 mm.
Zawsze podkreślam, że średnice i klasy prętów muszą być bezwzględnie zgodne z projektem konstrukcyjnym i obowiązującymi normami, takimi jak PN-B-03264: 2002. Odstępstwa od tych wytycznych mogą mieć katastrofalne skutki dla nośności stropu.
Beton C20/25 (B25) i odpowiednia grubość nadbetonu dlaczego to takie ważne?
Oprócz stali, kluczowym materiałem jest beton. Dla stropów Teriva standardowo stosuje się beton klasy C20/25 (dawniej oznaczany jako B25). Ta klasa betonu zapewnia odpowiednią wytrzymałość na ściskanie, co jest niezbędne dla bezpiecznej pracy stropu. Nie mniej ważna jest odpowiednia grubość warstwy nadbetonu. To nie tylko ochrona dla zbrojenia przed korozją, ale także element, który zapewnia właściwy rozkład obciążeń na całą powierzchnię stropu oraz efektywną współpracę wszystkich jego elementów belek, pustaków i zbrojenia. Zbyt cienka warstwa nadbetonu może prowadzić do pęknięć, a nawet osłabienia konstrukcji.
Otulina zbrojenia jak zapewnić odpowiednią grubość i ochronę stali?
Otulina zbrojenia to warstwa betonu, która pokrywa pręty zbrojeniowe. Jej rola jest nie do przecenienia. Po pierwsze, chroni stal przed korozją, która mogłaby osłabić jej wytrzymałość. Po drugie, zapewnia prawidłową współpracę stali z betonem, umożliwiając efektywne przenoszenie obciążeń. Po trzecie, zwiększa odporność ogniową konstrukcji. Aby zapewnić odpowiednią grubość otuliny (zazwyczaj minimum 2-3 cm, w zależności od elementu i warunków ekspozycji), konieczne jest stosowanie specjalnych podkładek dystansowych, potocznie nazywanych "grzybkami" lub "żabkami". Zbyt mała otulina to prosta droga do korozji zbrojenia, pękania betonu i w konsekwencji osłabienia całej konstrukcji. Zawsze zwracam na to szczególną uwagę podczas kontroli.
Najczęstsze błędy wykonawcze i jak ich uniknąć checklista dla inwestora i wykonawcy
Błąd #1: Całkowite pominięcie żeber rozdzielczych lub ich błędne rozmieszczenie
To jeden z najczęstszych błędów, który niestety widuję na budowach. Całkowite pominięcie żeber rozdzielczych, zwłaszcza przy większych rozpiętościach stropu (powyżej 4 m), prowadzi do zjawiska "klawiszowania", czyli nierównomiernego uginania się belek. Konsekwencją są pęknięcia na suficie i zmniejszona sztywność konstrukcji. Pamiętaj, że żebra są bezwzględnie konieczne, a ich prawidłowe rozmieszczenie musi być zgodne z projektem jedno żebro w środku dla rozpiętości 4-6 m, a dwa lub więcej dla rozpiętości powyżej 6 m.
Błąd #2: Brak zbrojenia przypodporowego ciche zagrożenie dla konstrukcji
Brak lub niewłaściwe wykonanie zbrojenia przypodporowego to moim zdaniem jedno z najgroźniejszych zaniedbań. Te siatki wzmacniają strefy oparcia belek, gdzie występują największe naprężenia ścinające. Ich brak osłabia najbardziej obciążone miejsca stropu, co może prowadzić do jego uszkodzenia, a nawet katastrofy. Zbrojenie przypodporowe jest elementem obowiązkowym (norma 40 kN/m), dlatego zawsze należy stosować siatki typu P lub Z, dokładnie tak, jak przewiduje projekt.
Błąd #3: Niewłaściwe zakotwienie prętów w wieńcach i na zakładach
Ciągłość zbrojenia to podstawa. Niewłaściwe zakotwienie prętów, na przykład zbyt krótkie wpuszczenie zbrojenia żeber rozdzielczych w wieńce (powinno być minimum 0,5 m), lub zbyt krótkie długości zakładów prętów, prowadzi do osłabienia przenoszenia sił w konstrukcji. W efekcie zbrojenie nie pracuje jako jedna całość, a strop traci swoją monolityczność i nośność. Zawsze należy dbać o odpowiednie długości zakotwień i zakładów, zgodnie z wytycznymi projektowymi.
Przeczytaj również: Castorama: Dystanse pod zbrojenie Jak wybrać i nie popełnić błędu?
Błąd #4: Zbyt mała otulina betonu prowadząca do korozji zbrojenia
Zbyt mała otulina betonu to błąd, który nie daje o sobie znać od razu, ale w dłuższej perspektywie jest bardzo szkodliwy. Brak odpowiedniej warstwy betonu ochronnej sprawia, że stal zbrojeniowa jest narażona na korozję. Rdzawe naloty, a następnie pęcznienie stali, prowadzą do pękania betonu, osłabienia przekroju prętów i w konsekwencji do znacznego obniżenia trwałości i bezpieczeństwa konstrukcji. Aby temu zapobiec, zawsze należy stosować podkładki dystansowe, które zapewniają wymaganą grubość otuliny.
Betonowanie powinno odbywać się na całej powierzchni stropu jednocześnie, a przed wylaniem mieszanki należy polać wodą wszystkie elementy w celu poprawy przyczepności.
